Golden Ears Elementary – Prefabricated Addition

Golden Ears Elementary – Prefabricated Addition

In September 2024, the Ministry of Education and Child Care (MECC) announced it would fund an eight-classroom prefabricated addition at Golden Ears Elementary (GEE), adding 195 new student seats to the school.

The use of prefabricated construction means students will soon be learning in modern classrooms that look just like regular schools. With sustainable and energy-efficient designs, the additions also align with the Province’s CleanBC targets and meets B.C.’s enhanced energy requirements. The new classrooms will be in a two-story detached addition near the main building. Construction is expected to go to tender in late April 2025, with occupancy targeted for September 2026. 

August 29, 2025: Prefabricated Addition Construction Update – Site Access Changes

Construction has begun on the south side of the school, starting with site preparation over the summer.

During the school year, there will be temporary changes to site access and parking while this work is underway.

School Access

  • The south parking lot will be closed.
  • The front parking lot will be limited to staff only.
  • Street parking is available but may be reduced due to contractor vehicles.
  • Pedestrian access remains open but will be rerouted.

Please allow extra time during drop-off and pick-up, and follow posted signage. Be mindful of trucks entering and exiting the site, and follow the direction of flaggers for your safety.

Field Access

The artificial turf field remains open and can be reached from either side of the construction site — along the east fence or the west sidewalk beside the road.

Playground Update

The two older playgrounds have been removed to make room for the classroom addition and the expanded parking area. Once construction is complete and the east portables are removed, a new playground will be built for students to enjoy.

Construction is scheduled for completion in summer 2026.

January 10, 2025: Update on GEE Prefabricated Addition Project

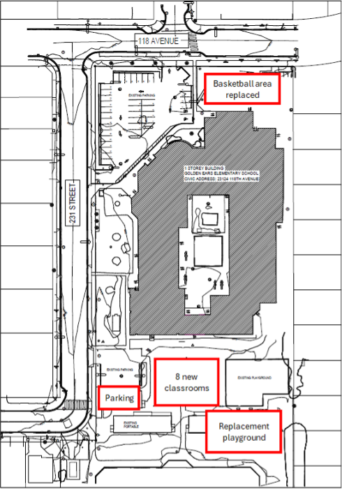
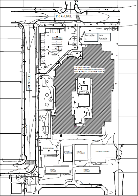
We are pleased to share the project concept below. This concept includes a rendering of the school site as it looks today and visualizations of the completed site, including the building, playground, and expanded parking lot.

To accommodate the construction, one portable has already been relocated to the north side of the school. The two older playgrounds will be removed to make room for the addition and the expanded parking area. Once construction is complete and two of the four remaining portables are removed, the playgrounds will be replaced with a new playground in the southeast corner.

School Site Today:

School Site when Project Complete:

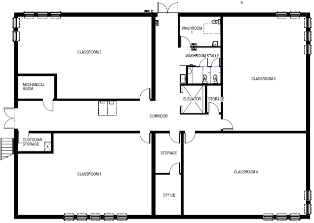
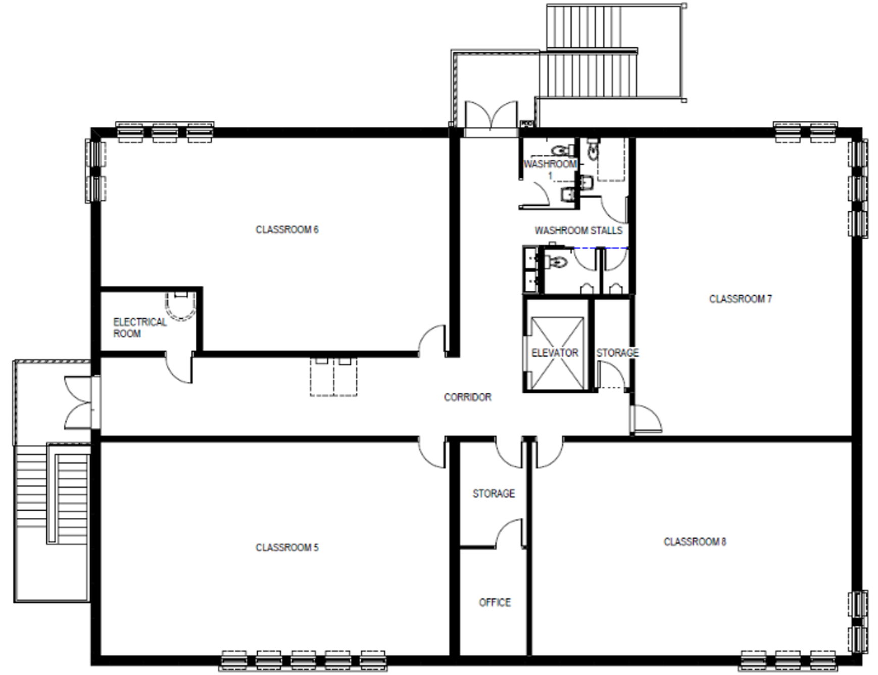
Below are the conceptual floor plan for both levels of the new building.

Ground Floor:

Second Floor:

An artist’s conceptual rendering of the north entrance, facing the school, is provided below.

Construction is expected to go to tender in late April 2025, with completion targeted for early 2026. The addition will open for classes in September 2026.

Another update will be posted before construction begins.

Our vision
Our vision is for every individual to feel valued and for all learners to reach their potential.
Our mission
Our mission is to support all individuals in their development as successful learners, and as respectful, caring and responsible members of society.