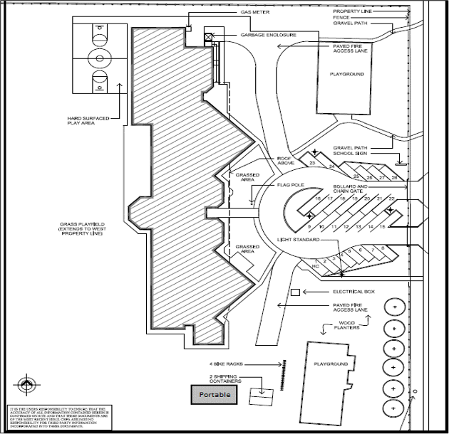
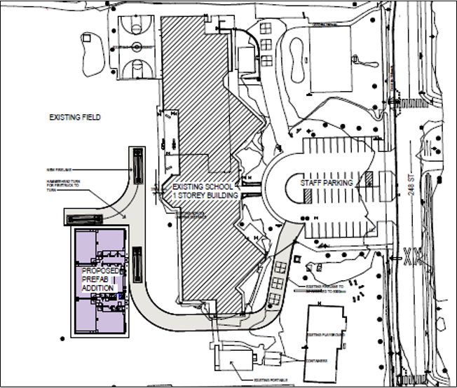
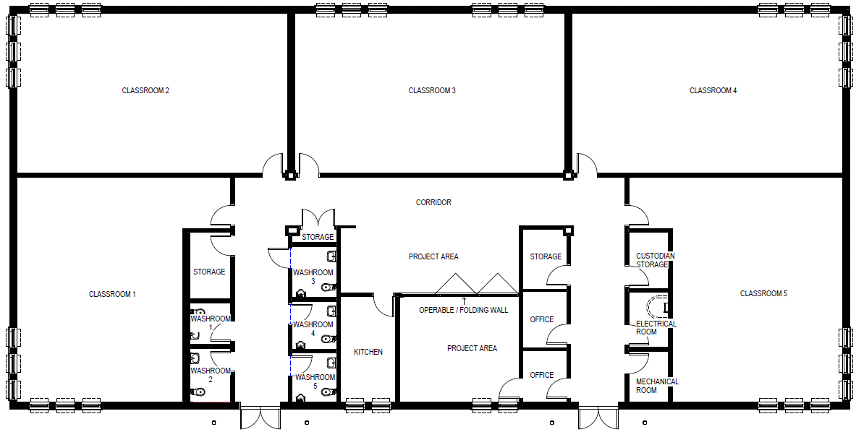
In September 2024, the Ministry of Education and Child Care (MECC) announced it would fund a five-classroom prefabricated addition at Blue Mountain Elementary (BME), adding 120 new student seats to the school.
The use of prefabricated construction means students will soon be learning in modern classrooms that look just like regular schools. With sustainable and energy-efficient designs, the additions also align with the Province’s CleanBC targets and meets B.C.’s enhanced energy requirements. The new classrooms will be in a single-story detached addition near the main building and are scheduled to open for classes in September 2026.





